ГК Горбуновъ
(8482) 76-73-25
(8482) 93-92-08
Тел: (8482) 25-11-11
Все деревянные лестницы

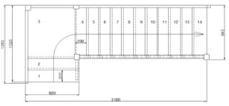
Типовая лестница ЦЛ-6/1

Типовая лестницы ЦЛ-6

Схематические изображения




Лестница "ЦЛ - 6/1" предназначена для эксплуатации в двухуровневых квартирах и загородных коттеджах и имеет следующие характеристики:

Направление поворота левое и правое
Высота этажа 3000 мм
Проём в перекрытии 2200х1000 мм
Размер в плане 3100х1350 мм
Угол наклона 45 0
Высота ступени 200 мм
Наступная ширина 200 мм
Ширина марша 800 мм
Количество ступеней 14 шт

Отделка  -  готово к покрытию, не  окрашена !!!

Цена стандартного комплекта без покраски от:

Ель 46 100 руб.
Сосна 51 900 руб.
       

Стоимость покраски: 23 400р. (лак); 26 600р. (лак, тон).                  

ДОСТАВКА ЛЕСТНИЦЫ НЕ ВХОДИТ В УКАЗАННУЮ СТОИМОСТЬ. 
ДОСТАВКА ЛЕСТНИЦЫ ОПЛАЧИВАЕТСЯ ОТДЕЛЬНО. 
СТОИМОСТЬ ДОСТАВКИ УТОЧНЯЙТЕ ПРИ ОФОРМЛЕНИИ ЗАКАЗА!

  • В стандартной комплектации лестницы: столбы квадратные, балясины точеные.
  • Лестница поставляется в разобранном виде, упакованной в термоплёнку и собирается на объекте монтажа по указаниям, приведенным в паспорте на лестницу.
  • К данной лестнице Вы можете дополнительно у нас приобрести: ограждение проема, коврики.
Все типовые лестницы

Мебельный щит

Мебельный щит
Бук Ель Сосна
Лиственница Ясень Дуб
Погонаж, МДФ, Элементы лестниц

- Евровагонка

- Доска пола

- Террасная доска

- Блок-хаус

- Имитация бруса

- Балясины, столбы, поручни

- Рейка, плинтус, наличник

- Шпонированный МДФ

- Декоративные решетки

Фотогалерея

Типовые лестницы

Индивидуальные лестницы

Столбы, балясины, поручни

Новости

РЕЖИМ РАБОТЫ В ПРАЗДНИЧНЫЕ ДНИ
22.02.2023 с 9:00 до 17:00
23.02.2023 - выходной день
24.02-25.02.2023 - с 10:00 до 16:00
26.02.2023...

НОВОЕ ПОСТУПЛЕНИЕ МЕБЕЛЬНЫХ ЩИТОВ ИЗ ЯСЕНЯ
НОВОСТЬ СЕГОДНЯШНЕГО ДНЯ!
У НАС НОВОЕ ПОСТУПЛЕНИЕ ДАЛЬНЕВОСТОЧНЫХ МЕБЕЛЬНЫХ ЩИТОВ ИЗ ЯСЕНЯ!

Мебель из натурального дерева

Выбирая эксклюзивную мебель из натурального дерева, вы делаете ставку на прочность, красоту, долговечность, а это, согласитесь, в наше время не последние причины, почему стоит обращать внимание на натуральные материалы. Ведь натуральное дерево и прессованные опилки – это попросту несравнимые вещи. ....

Стол листва, лавка со спинкой крестом